Prodej bytu 2+1, 52 m2, Příbram
4 390 000
czk / za nemovitostKupní cena ve včetně právních služeb a RK.
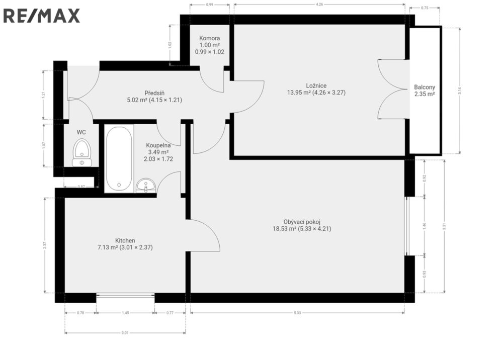
Prodeji exkluzivního byt 2 + 1, 52m2 s balkonem, na prestižní adrese ul. Jana Drdy, Příbram VII.
Nabízíme k prodeji exkluzivní byt 2 + 1 nacházející se na prestižní adrese ul. Jana Drdy, Příbram VII. Tento moderně rekonstruovaný byt o celkové ploše 52 m² se nachází v 5. podlaží dvanáctipodlažního panelového domu, který prošel celkovou revitalizací a nyní poskytuje komfortní bydlení v žádané lokalitě.
Tento atraktivní a nově zrekonstruovaný byt je ideální volbou pro mladý pár či jednotlivce, kteří hledají kvalitní startovací bydlení. Dispozice bytu zahrnuje prostorný obývací pokoj, útulnou ložnici a plně vybavenou kuchyni se všemi potřebnými spotřebiči, což usnadňuje každodenní život. Skvělou přidanou hodnotou je menší šatna, která nabízí úložný prostoru a dokonalou organizaci vašeho oblečení a dalších osobních věcí.
Z ložnice je přístup na balkon o ploše 2,40 m², odkud si můžete vychutnat panoramatický výhled do otevřeného prostoru a relaxovat na čerstvém vzduchu. Dům je vybaven moderním výtahem a bezbariérový přístup zároveň zajišťuje komfort pro všechny obyvatele.
Snížené provozní náklady jsou dalším lákavým prvkem této nemovitosti která je napojena na centrální dálkové vytápění. Další bonusem bytu je nová elektroinstalace, podlahy či omítky.
Umístění bytu je velmi příhodné, pouze několik minut chůze od domu se nachází zastávka autobusu a veškerá občanská vybavenost. V blízkosti je také nové multifunkční hřiště, které zaručuje aktivní způsob trávení volného času. K dispozici je také dobrá dostupnost veřejné dopravy, včetně vlakového spojení a MHD.
Tento byt je opravdovou oázou klidu a pohodlí, která kombinuje moderní prvky s praktickým uspořádáním. Je ideálním místem pro život, které splní požadavky nejvyšších standardů.
V případě zájmu o prohlídku nás neváhejte kontaktovat.
Podrobné informace
| Číslo zakázky: | NP06524 |
| Město: | Příbram |
| Ulice: | Jana Drdy 489 |
| Dispozice: | 2 + 1 |
| Celková plocha: | 52 m2 |
| Užitná plocha: | 52 m2 |
| Číslo podlaží: | 5 |
| Počet podlaží v objektu: | 12 |
| Druh objektu: | Panelová |
| Stav objektu: | Po rekonstrukci |
| Vlastnictví: | Osobní |
| Typ nemovitosti: | Byty |
| Doprava: | vlak, silnice, MHD, autobus |
| Ostatní rozvody: | kabelové rozvody |
| Plyn: | plynovod |
| Umístění objektu: | Klidná část obce |
| Výtah: | Ano |
| Energetická náročnost budovy: | C |
| Balkon: | Ano (2.4 m2) |
| Lodžie: | Ne |
| Garáž: | Ne |
| Vybaveno: | Ano |
| Ostatní rozvody: | kabelové rozvody |
| K nastěhování: | 19. 6. 2025 |
Kontaktujte makléře nemovitosti



























