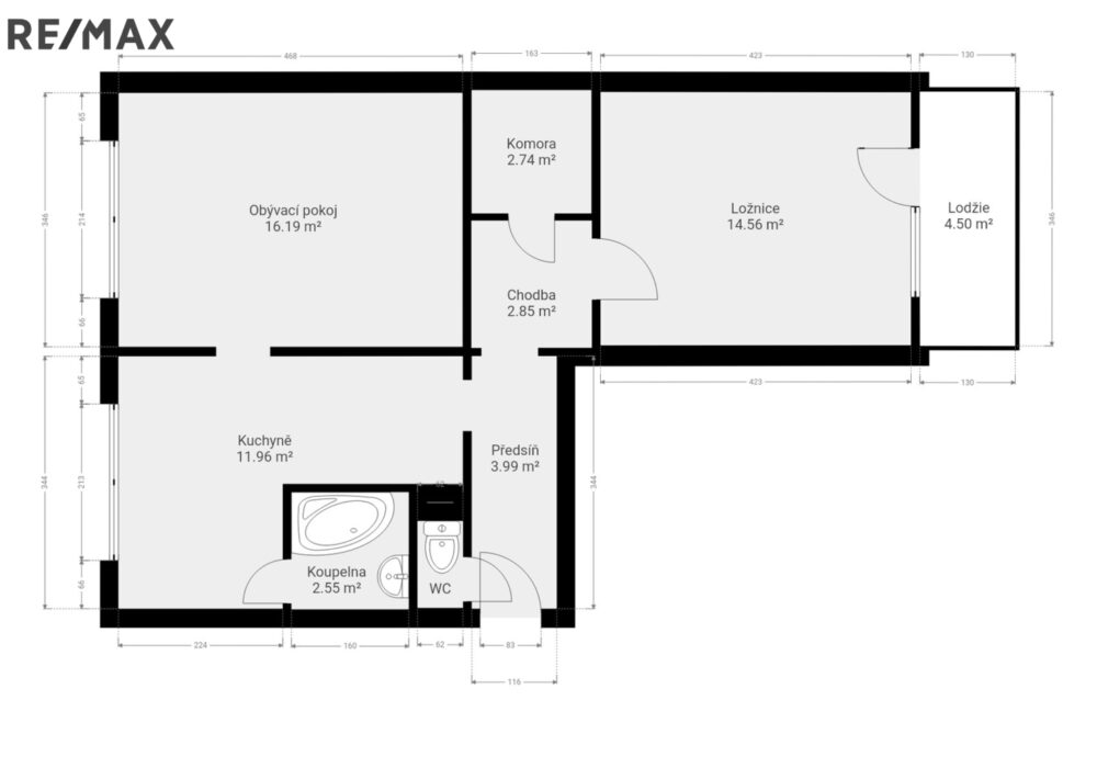
Prodej bytu 2+1, 58 m2 + balkon, OV, Březinova, Jihlava
Exkluzivně nabízíme k prodeji byt 2+1 v osobním vlastnictví o celkové podlahové ploše 60,5 m2 (58 m2 byt a 2,3 m2 balkon) na adrese Březinova 3943/64, 586 01 Jihlava. Byt je v původním, ale udržovaném stavu. Nachází se ve třetím nadzemním podlaží šestipodlažního panelového domu z roku 1965. Nemovitost je ideální pro příjemné bydlení nebo jako investice k dlouhodobému pronájmu.
Nemovitost se nachází na sídlišti Březinova (též známém jako Březinky), což je největší sídliště v Jihlavě. Jedná se o klidnou rezidenční oblast v jihozápadní části města, obklopenou lesoparkem Heulos ze západní strany, což poskytuje příjemné zelené prostředí pro procházky a rekreaci. Tato lokalita je ideální pro rodiny s dětmi díky dobré dostupnosti služeb, obchodů, škol, školek a MHD, přičemž je vzdálená jen několik kilometrů od centra Jihlavy.
Mezi výhody této lokality patří blízkost k přírodě (lesopark Heulos), kompletní občanské vybavení v pěší vzdálenosti, nízké provozní náklady díky revitalizaci domů, dobrá dostupnost do centra (cca 10–15 minut autem nebo MHD). Oblast je klidná, s minimálním provozem.
Popis bytu, stav, rekonstrukce a SVJ:
Byt je v původním, ale ve velmi hezkém a udržovaném stavu, připraven k okamžitému nastěhování. Je vybavený plastovými okny orientovanými na jihozápad a severovýchod, což zajišťuje příjemné osvětlení i klid. Byt je nabízen ve stavu k rekonstrukci (umakartové jádro, původní elektřina, zánovní kuchyňská linka). Topení dálkové včetně ohřevu teplé vody. Měsíční poplatky za služby činí 4 405 Kč z toho 1 746 Kč tvoří fond oprav. Společenství vlastníků jednotek (SVJ) funguje bez úvěrů a opravy jsou hrazeny z naspořených prostředků fondu oprav. Letos chce SVJ realizovat výměnu vodoměrů a měřičů tepla. Navyšování poplatků do fondu oprav se neplánuje.
Nemovitost lze financovat hypotečním úvěrem, se kterým vám rádi pomohou naši hypoteční specialisté.
Podrobné informace
| Číslo zakázky: | NP06653 |
| Město: | Jihlava |
| Ulice: | Březinova 3943 |
| Dispozice: | 2 + 1 |
| Celková plocha: | 61 m2 |
| Užitná plocha: | 57 m2 |
| Číslo podlaží: | 3 |
| Počet podlaží v objektu: | 6 |
| Druh objektu: | Panelová |
| Stav objektu: | Velmi dobrý |
| Vlastnictví: | Osobní |
| Typ nemovitosti: | Byty |
| Doprava: | vlak, dálnice, silnice, MHD, autobus |
| Plyn: | plynovod |
| Výtah: | Ano |
| Energetická náročnost budovy: | C |
| Balkon: | Ne |
| Lodžie: | Ne |
| Garáž: | Ne |
| Vybaveno: | Ano |
Kontaktujte makléře nemovitosti





































