Nádherný byt po kompletní rekonstrukci 3+kk, 61m2, OV, Nedvězská, Strašnice
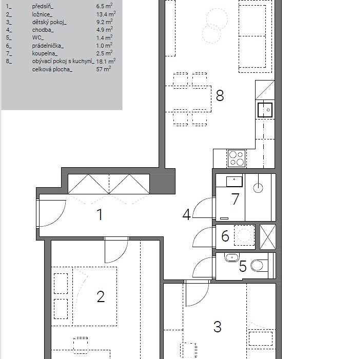
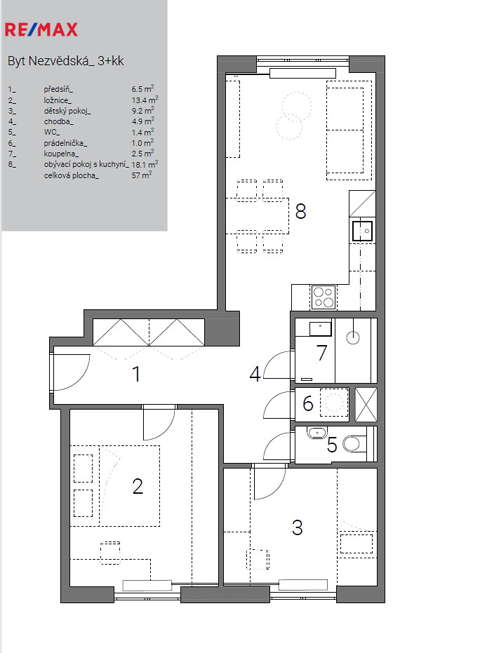
Exkluzivně nabízíme k prodeji byt 2+1 v osobním vlastnictví o celkové podlahové ploše 61 m2 (byt 58 m2, sklep 3m2) po velmi zdařilé kompletní rekonstrukci. Nemovitost je situována ve čtvrtém (posledním) podlaží cihlového domu z roku 1955 bez výtahu na adrese Nedvězská 1832/3, 100 00 Praha 10 – Strašnice. Plastová okna jsou orientována na východ a západ.
Byt prošel kompletní a nádhernou rekonstrukcí pod dohledem zkušených architektů, kteří dbali na každý detail, aby vytvořili prostor, který splňuje nejvyšší standardy současného bydlení.
Vše je nové – od podlah přes rozvody elektřiny a vody až po moderní koupelnu, toaletu a kuchyni. Nemusíte nic řešit, stačí se nastěhovat a užívat si nové a krásné bydlení.
Pro lepší představu jsme k některým reálným fotografiím připojili vizualizaci s virtuálně doplněným nábytkem. Nemovitost se prodává s kompletně vybavenou kuchyňskou linkou novými spotřebiči, bez nábytku.
Měsíční poplatky za služby – 3 792,-Kč, z toho fond oprav 609,-Kč. SVJ funguje dobře, bez úvěru a průběžné opravy domu vždy realizovalo z naspořených prostředků fondu oprav.
Byt se nachází v klidné části města, přitom v docházkové vzdálenosti od obchodů, restaurací, škol a parků. Výborná dostupnost na metro A (Skalka) chůzí 10 min., nebo na zastávku tramvaje (Radošovická) 5 min. V okolí veškerá občanská vybavenost. Vše, co potřebujete, máte na dosah ruky.
Nemovitost lze financovat hypotečním úvěrem.
Podrobné informace
| Číslo zakázky: | NP06254 |
| Město: | Praha 10 - Strašnice |
| Ulice: | Nedvězská 1832 |
| Dispozice: | 3 + kk |
| Celková plocha: | 61 m2 |
| Užitná plocha: | 61 m2 |
| Číslo podlaží: | 4 |
| Počet podlaží v objektu: | 5 |
| Druh objektu: | Smíšená |
| Stav objektu: | Před rekonstrukcí |
| Vlastnictví: | Osobní |
| Typ nemovitosti: | Byty |
| Doprava: | vlak, dálnice, silnice, MHD, autobus |
| Plyn: | plynovod |
| Umístění objektu: | Klidná část obce |
| Energetická náročnost budovy: | E |
| Balkon: | Ne |
| Lodžie: | Ne |
| Garáž: | Ne |
| Vybaveno: | Ano |
Kontaktujte makléře nemovitosti


































