Prodej bytu 2+kk, 43 m2, ul. Divišovská, Praha - Chodov
Nabízíme ke koupi družstevní byt 2+kk (43 m²) s terasou (4 m²) a garážovým stáním v domě.
Byt se nachází ve 4. patře bytového domu s výtahem, v projektu Kulatý Chodovec z roku 2003, v klidné části Prahy 4 – Chodov, ulice Divišovská.
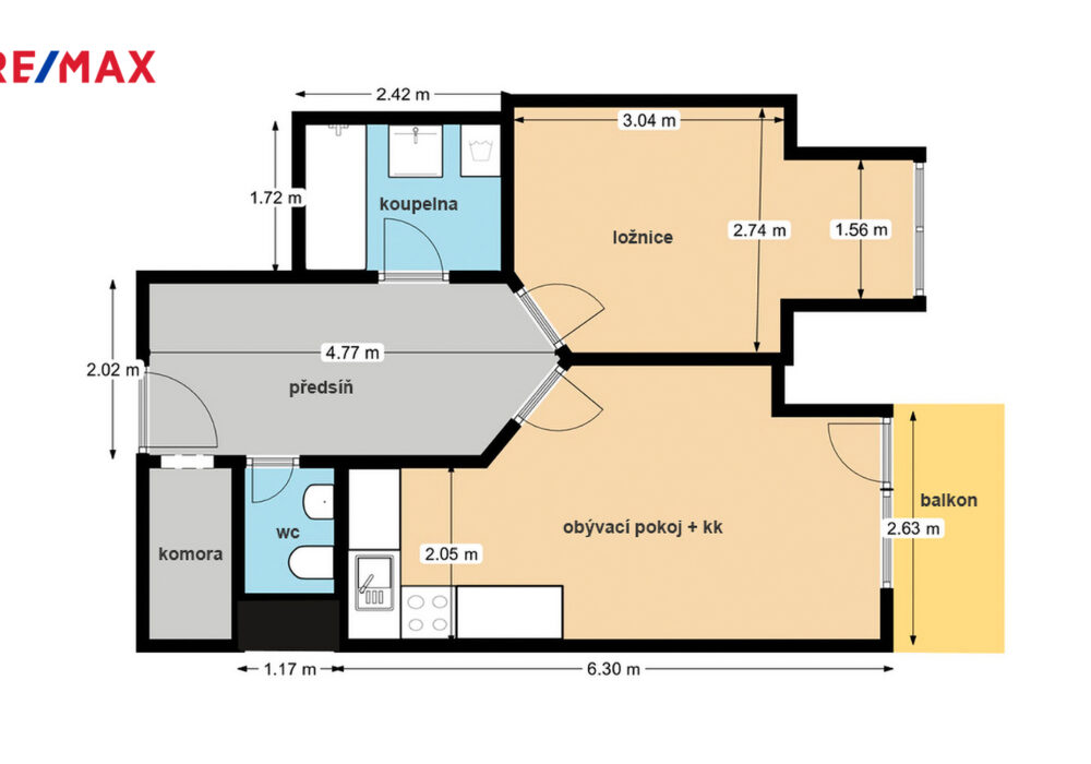
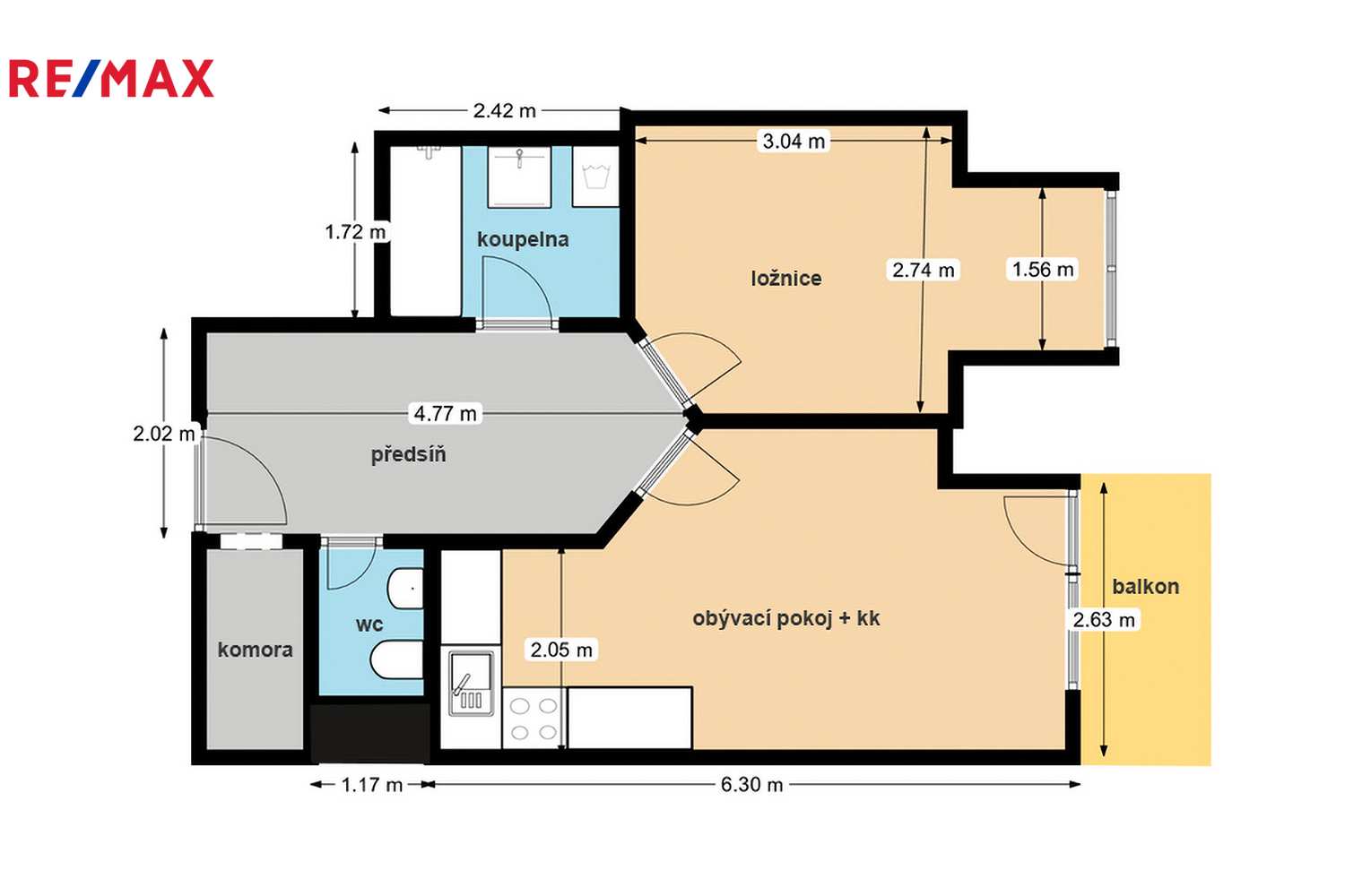
Dispozice: obývací pokoj s kuchyňským koutem a vstupem na terasu, ložnice, koupelna s vanou, samostatné WC a komora.
Byt lze okamžitě užívat, nicméně modernizace interiéru je vhodná.
Velkou předností je jihovýchodně orientovaná terasa a garážové stání v suterénu domu.
V okolí je veškerá občanská vybavenost: škola, školka, obchody, lékárna i metro C – Chodov. Lokalita nabízí dostatek zeleně a parků.
Vhodné jako startovací bydlení nebo investice.
Pro více informací mě prosím kontaktuje.
Podrobné informace
| Číslo zakázky: | NP06436 |
| Město: | Praha 11 - Chodov |
| Ulice: | Divišovská 2307 |
| Dispozice: | 2 + kk |
| Užitná plocha: | 43 m2 |
| Číslo podlaží: | 4 |
| Počet podlaží v objektu: | 6 |
| Druh objektu: | Cihlová |
| Stav objektu: | Dobrý |
| Vlastnictví: | Družstevní |
| Typ nemovitosti: | Byty |
| Výtah: | Ano |
| Energetická náročnost budovy: | G |
| Balkon: | Ano (4 m2) |
| Lodžie: | Ne |
| Garáž: | Ano |
| Vybaveno: | Ano |
| K nastěhování: | 15. 7. 2025 |
Kontaktujte makléře nemovitosti





























