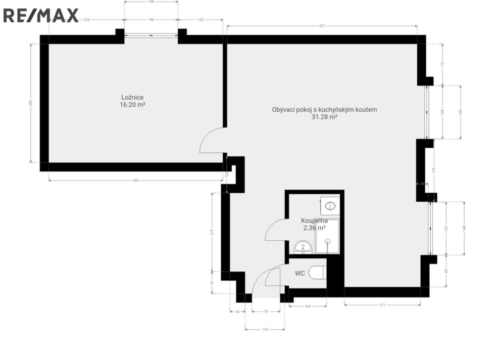
Prodej investičního bytu 2+kk, 50 m² + sklep, Praha 10 – Vršovice
Nabízíme světlý byt 2+kk v osobním vlastnictví o ploše 50 m² + sklep 2 m², na adrese Bělocerkevská 1303/30, Praha 10 – Vršovice. Byt je po kompletní rekonstrukci z roku 2017 a nachází se v revitalizovaném domě s dobře fungujícím SVJ.
Byt je aktuálně pronajat prověřenému a bezproblémovému nájemníkovi se smlouvou platnou do října 2026, který dlouhodobě a spolehlivě hradí nájemné 20 000 Kč/měsíc + energie. Ideální volba pro investora hledajícího okamžitý a stabilní výnos bez starostí.
Nemovitost je vhodná jako investice, nebo také k pohodovému rodinnému bydlení.
Dům a technický stav:
kompletní revitalizace: zateplená fasáda, dřevěná okna, nová střecha
nové domovní rozvody elektřiny
SVJ splácí úvěr na revitalizaci (zbývá cca 14 mil. Kč z původních 20 mil. Kč)
fond oprav pravidelně navyšován o inflaci
žádné další zásadní opravy nejsou aktuálně plánovány
Náklady:
poplatky: 5 451 Kč
fond oprav: 2 951 Kč
elektřina a plyn dle skutečné spotřeby (hrazeno nájemníkem)
Lokalita:
výborná dostupnost do centra – tramvaje a autobusy v docházkové vzdálenosti
smíšené zboží přímo v domě, Tesco Express v bezprostředním okolí
kompletní občanská vybavenost, restaurace, kavárny a služby
dlouhodobě velmi žádaná rezidenční lokalita s vysokou poptávkou po nájmu
Shrnutí:
osobní vlastnictví
nájemní smlouva do 10/2026
stabilní výnos
dům po revitalizaci
výborná investiční lokalita
Podrobné informace
| Číslo zakázky: | NP06835 |
| Město: | Praha 10 - Vršovice |
| Ulice: | Bělocerkevská 1303 |
| Dispozice: | 2 + kk |
| Celková plocha: | 52 m2 |
| Užitná plocha: | 52 m2 |
| Číslo podlaží: | 1 |
| Počet podlaží v objektu: | 8 |
| Druh objektu: | Smíšená |
| Stav objektu: | Velmi dobrý |
| Vlastnictví: | Osobní |
| Typ nemovitosti: | Byty |
| Doprava: | vlak, dálnice, silnice, MHD, autobus |
| Plyn: | plynovod |
| Umístění objektu: | Centrum obce |
| Výtah: | Ano |
| Energetická náročnost budovy: | B |
| Balkon: | Ne |
| Lodžie: | Ne |
| Garáž: | Ne |
| Vybaveno: | Ano |
Kontaktujte makléře nemovitosti























