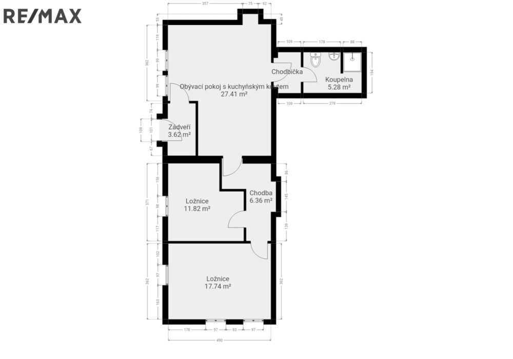
Prodej bytu 3+kk, 73 m2, OV, Hořany
Nabízíme k prodeji prostorný byt 3+kk o podlahové ploše 73,3 m2 v klidné obci Hořany, ideální pro ty, kteří hledají poklidné venkovské bydlení s dobrou dostupností do města. Byt se nachází v domě o čtyřech bytových jednotkách na adrese Hořany 16, v srdci Středočeského kraje, pouhých 14 km od Nymburka a 45 km od Prahy.
Vybavení bytu
Nábytek: Vše co vidíte na fotografiích zůstává v bytě.
Topení: Elektrický kotel + krbová kamna na peletky s výměníkem.
Ohřev vody: Elektrický bojler pro spolehlivý přísun teplé vody.
Vodovod: Voda je čerpána z vlastní studny, což zajišťuje soběstačnost bez poplatků (možnost připojení na obecní vodovod).
Odpad: Dočasně sveden do jímky, s plánem na budoucí napojení na kanalizaci.
Elektřina: Dům je napojen na elektrickou síť.
Lokalita a dostupnost
Obec Hořany nabízí klidné prostředí obklopené přírodou, ideální pro odpočinek od městského ruchu. Všechny potřebné služby a občanská vybavenost jsou dostupné v sousedních Poříčanech, nebo blízkém Nymburku (14 km, cca 12 minut jízdy autem).
Doprava: Autobusová zastávka v docházkové vzdálenosti (linka 826 do Nymburka, frekvence 1–2 hodiny). Vlakové spojení z nedalekých Poříčan (3 km) umožňuje rychlé cestování do Prahy (45 minut) nebo Kolína (15 minut).
Investiční potenciál
Byt je ideální volbou jak pro vlastní bydlení, tak pro investory hledající nemovitost k pronájmu. Díky klidné lokalitě a výborné dostupnosti do Nymburka a Prahy je atraktivní pro nájemníky, kteří ocení venkovský klid s rychlým spojením do města.
Energetická náročnost
Energetická třída G (Průkaz energetické náročnosti – PENB – nebyl dosud vypracován, bude předložen při prodeji).
Podrobné informace
| Číslo zakázky: | NP06655 |
| Město: | Hořany |
| Ulice: | 16 |
| Dispozice: | 3 + kk |
| Celková plocha: | 73 m2 |
| Užitná plocha: | 73 m2 |
| Číslo podlaží: | 1 |
| Počet podlaží v objektu: | 1 |
| Druh objektu: | Cihlová |
| Stav objektu: | Dobrý |
| Vlastnictví: | Osobní |
| Typ nemovitosti: | Byty |
| Doprava: | silnice, autobus |
| Umístění objektu: | Klidná část obce |
| Energetická náročnost budovy: | G |
| Balkon: | Ne |
| Lodžie: | Ne |
| Garáž: | Ne |
| Vybaveno: | Ano |
Kontaktujte makléře nemovitosti
























