Chata přímo u Nežárky - ideální k rekreaci i investici, Lásenice
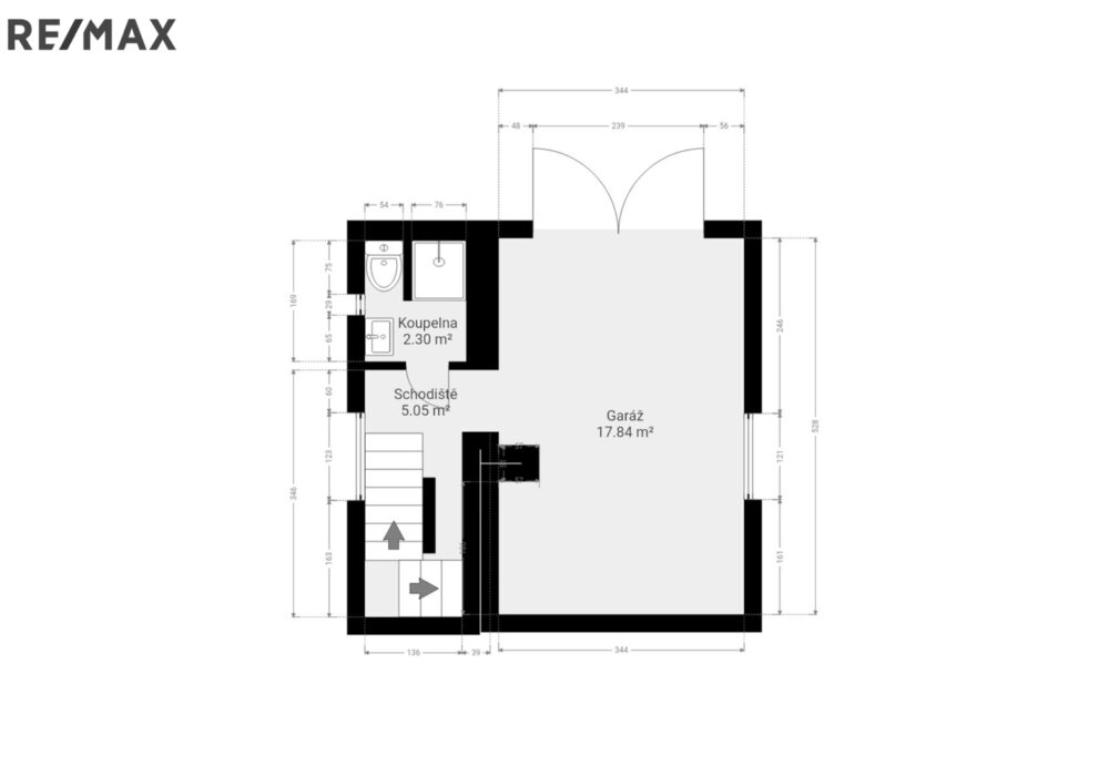
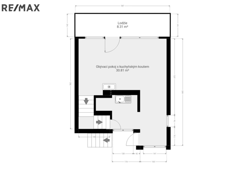
Nabízíme k prodeji hezky udržovanou chatu z 70. let (cihla, dřevo) na pozemku 398 m² v nádherné lokalitě přímo u řeky Nežárky, ideální pro milovníky přírody, rybaření a houbaření. Chata o užitné ploše 89 m² + dvě lodžie (4 a 8 m²) je v dobrém stavu, ale prodává se jako k rekonstrukci, což umožňuje přizpůsobení dle vašich představ. Adresa nemovitosti: Lásenice ev. č. 91, 378 01 Lásenice.
Dispozice:
Přízemí: Obytná garáž, sprchový kout s WC.
1. NP: Kuchynský kout, obývací pokoj s krbem a lodžií.
2. NP: Dvě ložnice a druhá lodžie.
Za chatou pergola s venkovním krbem, udírnou a posezením v soukromí.
Nad pergolou klidné zítiší s výhledem na polnosti, otevřenou přírodu a západ slunce.
Vybavení a technické zázemí:
Ohřev vody: elektrický bojler 80 l.
Topení: krb + přímotopy.
Voda: vlastní vrt 28 m s dostatkem vody.
Odpady: septik s trativodem.
Chata je vhodná k rekreaci, rybolovu, houbaření, ale i k trvalému bydlení po nenákladné rekonstrukci a zateplení. Skvělá investiční příležitost – možnost krátkodobých sezónních pronájmů (květen–září), zejména rybářům, až za 10 000 Kč/týden. Možnost převzetí výhodného úvěru cca 600 000 Kč s úrokem 2,45 %.
Další informace:
Prohlídky po dohodě s makléřem.
Energetický štítek PENB se na rekreační nemovitost nevztahuje.
Nenechte si ujít tuto jedinečnou příležitost vlastnit kousek ráje u řeky Nežárky! Kontaktujte nás pro více informací.
Kontaktujte makléře nemovitosti


































