Prodej menšího rodinného domu s možností půdní vestavby a přístavby, k rekonstrukci
Nabízíme ke koupi starší rodinný dům v původním stavu, který je nyní užíván k rekreaci, dle KN je však nemovitost zařazena jako rodinný dům s číslem popisným. Bez problému možno čerpat hypotéku. Nemovitost se nachází uprostřed zastavěného území rodinných domů v městské části Praha 4 – Točná.
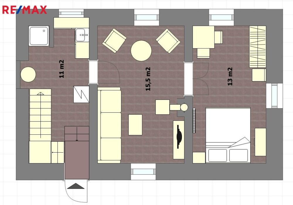
Dům má jedno obytné podlaží, které je dále členěno na dvě místnosti – obývací pokoj s kamny a také ložnici s elektrickým přímotopem (viz přiložený půdorys). Ve vstupní hale v přízemí naleznete také kuchyňku s dřezem a sprchový kout s bojlerem. Odtud také vedou dřevěné schody do podkroví, kde se nachází nevytápěná, prostorově nečleněná půda s jedním oknem ve štítové stěně. Strop nad obytným podlažím je betonový, dostatečně únosný pro případnou půdní vestavbu. Střecha je sedlová s krytinou z pálených tašek, krytina i krov jsou v dobrém stavu, nicméně pro půdní vestavbu by asi bylo vhodné střechu přizděním bočních stěn částečně zvednout. Pro následné užití k trvalému bydlení bude nejspíš i nutná přístavba koupelny, což by dle stavebního úřadu neměl být problém. Pro vaši představu je v přiložené fotodokumentaci zpracován i půdorys domu po rekonstrukci s přístavbou a vestavbou, kdy tak můžete získat více než 100 m2 podlahové plochy.
Dům prošel částečnou rekonstrukcí v 80 letech minulého století, má betonovou podlahu s keramickou dlažbou ve všech místnostech a dřevěná zdvojená okna, dveře jsou prosklené v dřevěných zárubních.
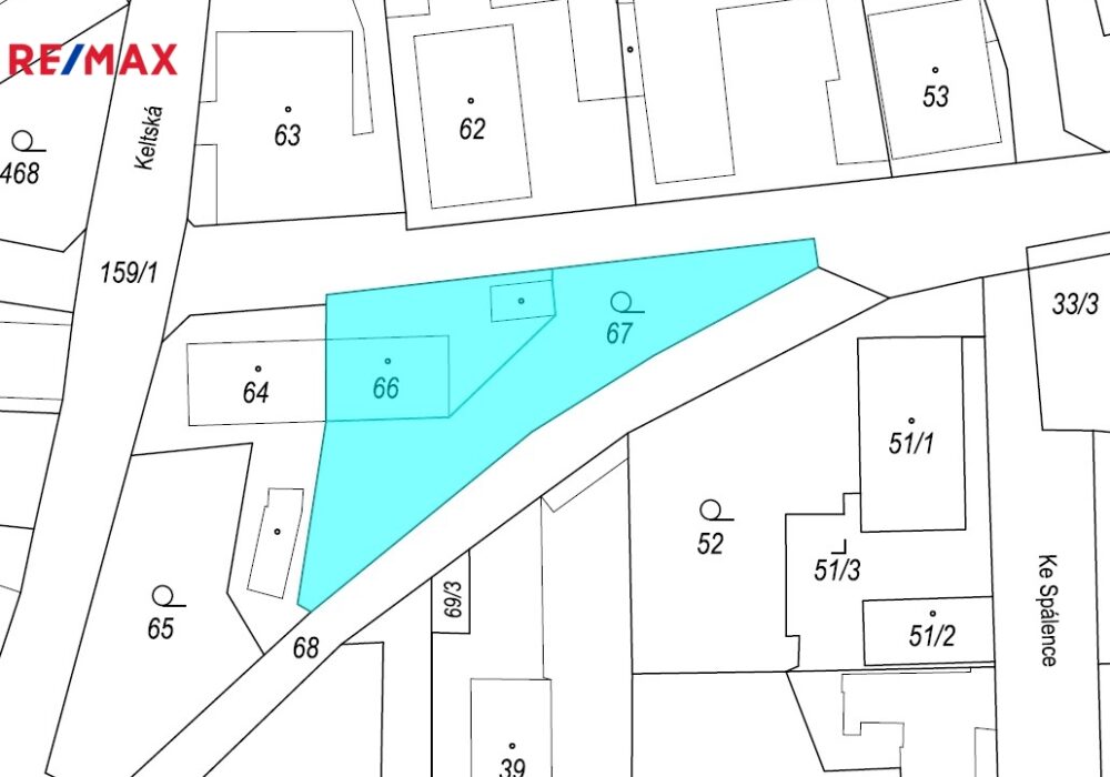
Na trojúhelníkovém pozemku o celkové ploše 452 m2 naleznete dále skleník, samostatný sklípek a také zděnou kůlnu, kde je dílna a záchod. Pozemek lemuje živý plot z tújí, které zajišťují dostatečné soukromí směrem od ulice a také několik vzrostlých ovocných stromů.
Veškerou občanskou vybavenost naleznete v Dolních Břežanech, které jsou dostupné autem/autobusem do pěti minut či na druhou stranu v Modřanech (13 minut). Autobusem jste také za 20 minut na metru Kačerov. Do budoucna se dostupnost ještě zlepší díky výstavbě plánované stanice linky metra D, která bude od domu vzdálena zhruba 10 minut jízdy. Městská část Praha 4 Točná nabízí spojení bydlení v hlavním městě a zároveň bydlení obklopené přírodou a zelení, v blízkém okolí naleznete bohatou síť cyklostezek a turistických tras. Krásné je především okolí Břežanského údolí, nad kterým se tyčí rozhledna Závist a největší známé keltské oppidum, či lesy přírodní rezervace Šance.
Pokud vás nabídka zaujala, ráda vám dům blíže představím na prohlídce.
Podrobné informace
| Číslo zakázky: | NP06596 |
| Město: | Praha 12 - Točná |
| Ulice: | K výboru 40 |
| Celková plocha: | 452 m2 |
| Užitná plocha: | 100 m2 |
| Plocha parcely: | 452 m2 |
| Plocha zahrady: | 300 m2 |
| Zastavěná plocha: | 59 m2 |
| Rok kolaudace: | 1919 |
| Počet podlaží v objektu: | 1 |
| Druh objektu: | Smíšená |
| Stav objektu: | Velmi dobrý |
| Typ nemovitosti: | Domy |
| Doprava: | MHD, autobus |
| Energetická náročnost budovy: | G |
| Balkon: | Ne |
| Lodžie: | Ne |
| Garáž: | Ne |
| Vybaveno: | Ano |
| K nastěhování: | 1. 11. 2025 |
Kontaktujte makléře nemovitosti
















































