Prodej rodinného domu 120m2 v Aši, ul. Komenského
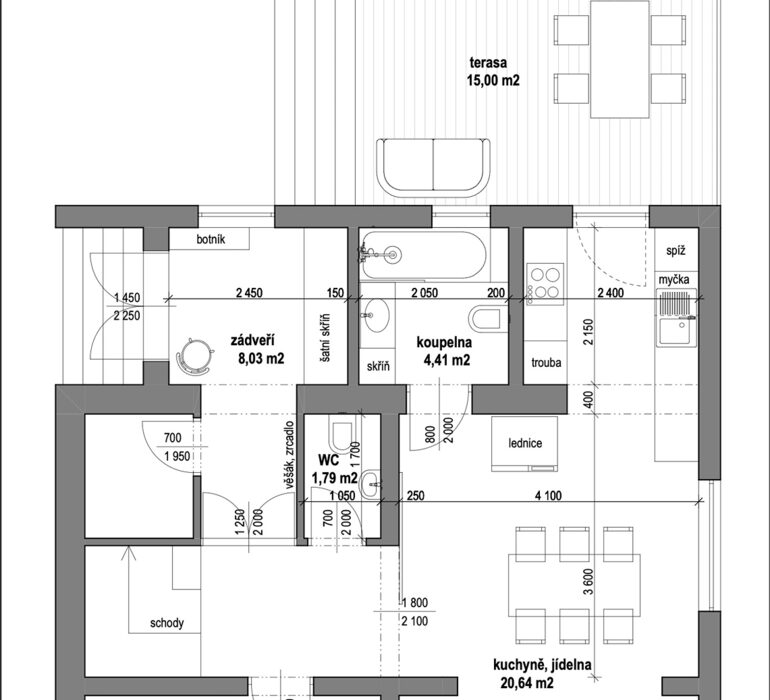
Ve výhradním zastoupení nabízíme rodinný dům v osobním vlastnictví o dispozici 4+kk s celkovou podlahovou plochou 120m2. Okolo domu najdeme příjemnou zahradu o výměře 289m2, která je nenáročná na údržbu. Dům má celkem 3 podlaží. (Technické podlaží (sklep), dvě obytná podlaží. Podkroví má již velmi nízké stropy, čili slouží jen k uskladnění menších věcí.
Stavba je cihlová, střecha valbová. Okna jsou plastová. Vytápění je řešeno plynovým kotlem nebo kamny které jsou umístěné v obývacím pokoji a kuchyni. Ohřev užitkové vody je řešen pomocí elektrického bojleru. Celkově je dům určen spíše k rekonstrukci, ovšem byl již částečně vypracovaný projekt na rekonstrukci. Parkování je možné přímo před domem, na vlastním pozemku nebo v garáži přímo za domem
Dům se nachází ve velmi klidné a žádané okrajové časti města Aše s dobrou dopravní dostupností a má obrovský potenciál. Rodinný dům těží ze své polohy, v blízkosti je rozsáhlá příroda. Jako velký bonus je základní škola, která je v docházkové vzdálenosti od domu.
Podrobné informace
| Číslo zakázky: | NP00900 |
| Město: | Aš |
| Ulice: | Komenského 2235 |
| Celková plocha: | 418 m2 |
| Užitná plocha: | 120 m2 |
| Plocha parcely: | 418 m2 |
| Plocha zahrady: | 289 m2 |
| Zastavěná plocha: | 102 m2 |
| Rok kolaudace: | 1945 |
| Počet podlaží v objektu: | 3 |
| Druh objektu: | Smíšená |
| Stav objektu: | Před rekonstrukcí |
| Typ nemovitosti: | Domy |
| Doprava: | vlak, silnice, autobus |
| Plyn: | plynovod |
| Umístění objektu: | Klidná část obce |
| Energetická náročnost budovy: | G |
| Balkon: | Ne |
| Lodžie: | Ne |
| Garáž: | Ne |
| Vybaveno: | Ano |
| K nastěhování: | 16. 6. 2025 |
Kontaktujte makléře nemovitosti






































