Prodej rodinného domu, 134 m2, Pyšely
7 500 000
czk / za nemovitostvčetně provize RK a právního servisu
Prodej rodinného domu 134m2 na pozemku 288m2 v Pyšelých
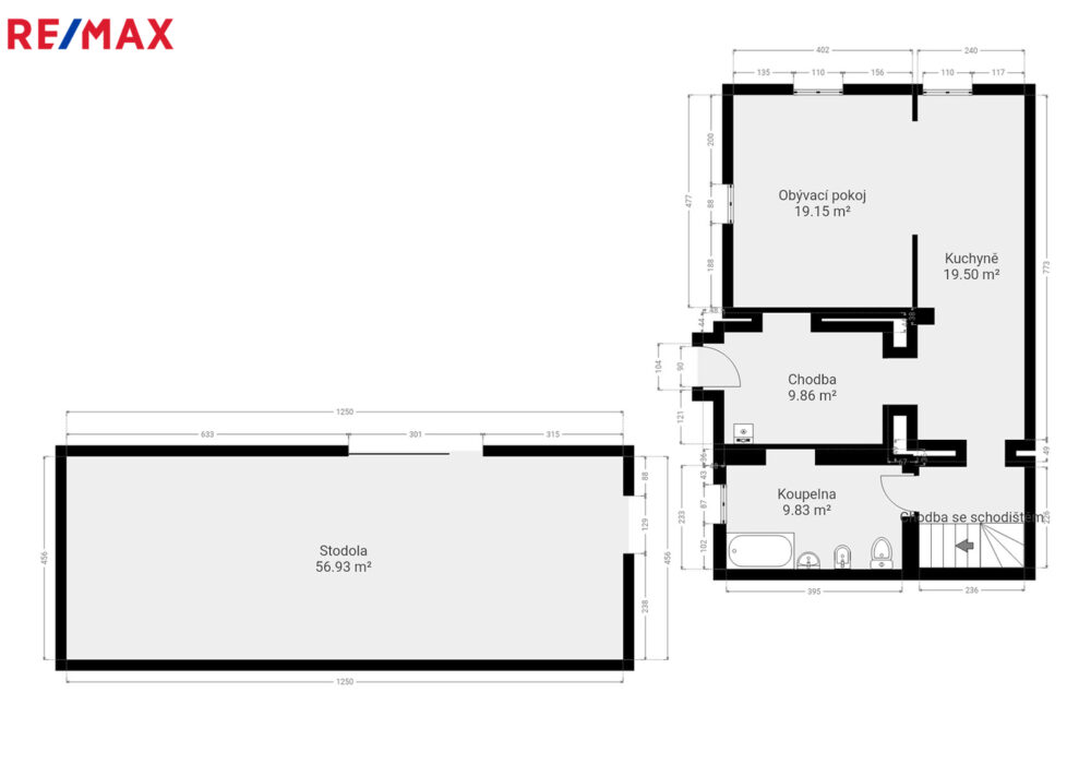
Nabízíme k prodeji útulný rodinný dům s menší zahradou v klidné obci Pyšely u Benešova. V přízemí domu se nachází kuchyně s jídelnou, prostorný pokoj, koupelna a předsíň. V patře je otevřený prostor, který lze snadno přetvořit na další pokoje podle vašich představ. Dům je napojen na obecní vodovod a topení zajišťuje plynový kotel.Na pozemku je také stodola, kterou můžete využít k parkování auta, jako dílnu nebo ji přestavět na další obytný prostor.
Skvělá dostupnost do Prahy: Pyšely leží jen 30 minut autem od Prahy, vlakem dojedete z nedalekého Mirošova za cca 40 minut na pražské Hlavní nádraží. Autobusová zastávka je kousek od domu.
Občanská vybavenost: V obci najdete mateřskou a základní školu, obchody s potravinami, restaurace a poštu. V okolí je několik dětských hřišť a sportovišť.
Volnočasové aktivity pro rodiny: Blízké okolí nabízí spoustu možností pro aktivní odpočinek – přírodní rezervace Voděradské bučiny, zámecký park v Pyšelích, cyklostezky a turistické trasy. Nedaleko je také golfové hřiště Loreta Pyšely, které ocení nejen milovníci golfu.
Pokud hledáte dům, který si můžete přizpůsobit svým potřebám, a zároveň bydlení v klidné lokalitě s výbornou dostupností do Prahy, je tato nabídka právě pro vás. Pro více informací mě neváhejte kontaktovat – ráda vám poskytnu podrobnosti a domluvím prohlídku!
Podrobné informace
| Číslo zakázky: | NP06495 |
| Město: | Pyšely |
| Ulice: | Na Košíku 93 |
| Celková plocha: | 288 m2 |
| Užitná plocha: | 134 m2 |
| Plocha parcely: | 288 m2 |
| Zastavěná plocha: | 121 m2 |
| Počet podlaží v objektu: | 2 |
| Druh objektu: | Cihlová |
| Stav objektu: | Velmi dobrý |
| Typ nemovitosti: | Domy |
| Doprava: | silnice, autobus |
| Umístění objektu: | Klidná část obce |
| Energetická náročnost budovy: | G |
| Balkon: | Ne |
| Lodžie: | Ne |
| Garáž: | Ne |
| Vybaveno: | Ano |
Kontaktujte makléře nemovitosti


































