Pronájem domu 4+kk s prosklenou terasou a pozemkem 400m²
Nabízíme k pronájmu řadový rodinný dům s dispozicí 4+kk+samostatná šatna (145m²+50m² zimní zahrada) s pozemkem 400m².
Dům má několik důležitých pozitiv:
1) Pronajímá se s nábytkem
2) Samostatná šatna u ložnice
3) Tepelné čerpadlo i plynový kotel
4) Dvě parkovací místa před domem
5) Plně uzavíratelná terasa
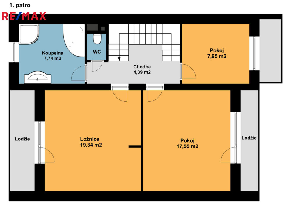
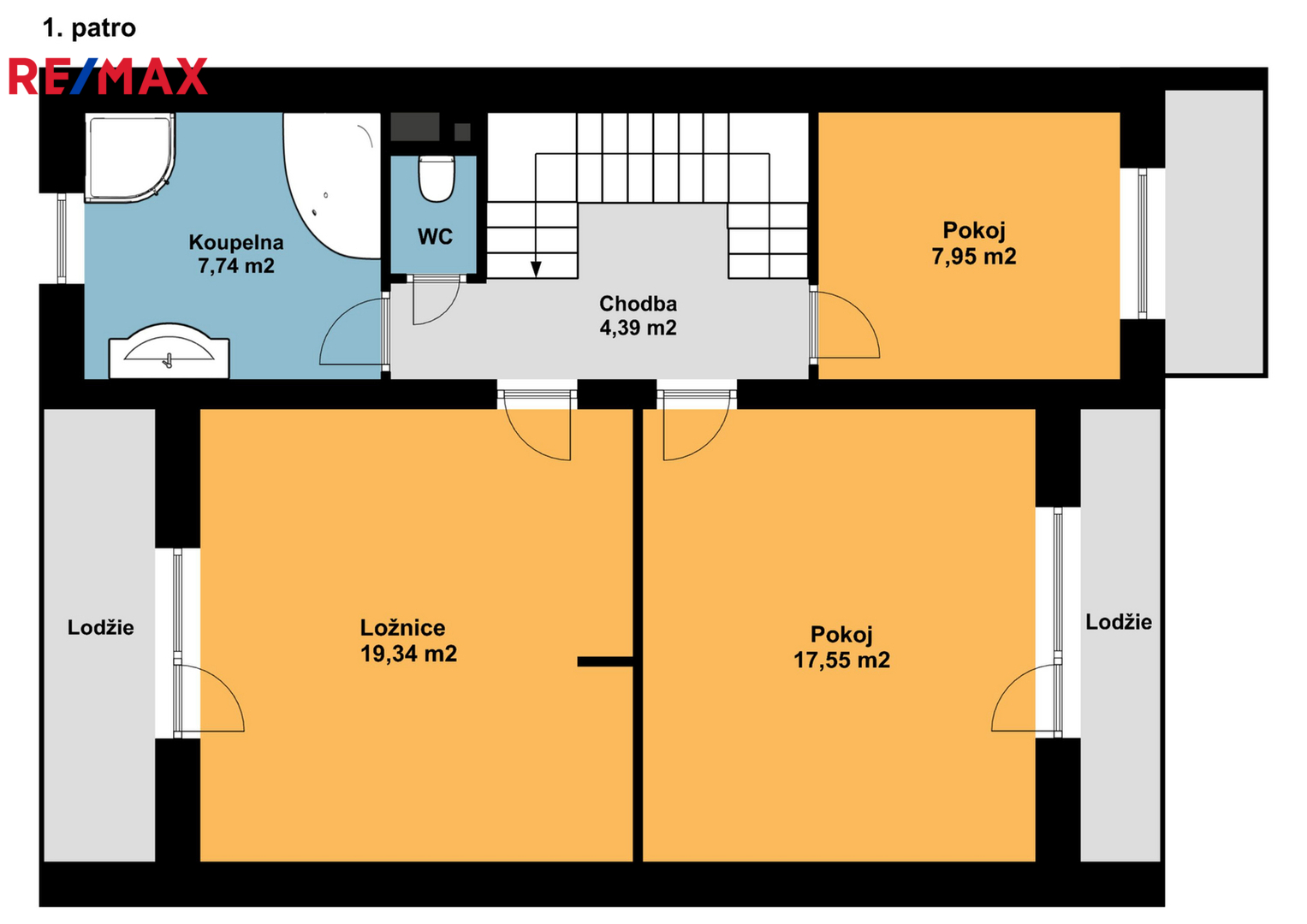
V přízemí se nachází obývací pokoj s kuchyňským koutem a zastřešenou terasou se vstupem do zahrady. V 1.patře se pak nacházejí dva pokoje, samostatná šatna a koupelna a v podkroví je další velký pokoj a malá pracovna.
Obec Lipany se nachází mezi obcí Říčany a Uhříněves. Lokalita je přesně pro ty, kteří hledají kombinaci přírody a Prahy na dosah. Do Prahy se dostanete autem po D1 nebo autobusem na Chodov nebo pak vlakem z Uhříněvsi.
Dům je připojený na veřejný vodovod i kanalizaci. Ve sklepě je technické zázemí včetně pračky.
Dům nemá vypracovaný PENB, proto uvádíme třídu G, aktuální zálohy na elektřinu jsou 4 300,-kč.
Topení a ohřev vody je zajištěn tepelným čerpadlem a v případě velkých mrazů je k dispozici i plynový kotel.
Kauce je 100 000,-kč, měsíční nájem 50 000,-kč, elektřina a plyn bude převedena na nájemce.
Dům je volný ihned.
Vřele doporučuji prohlídku
Podrobné informace
| Číslo zakázky: | NP06641 |
| Město: | Praha-Kolovraty - Lipany |
| Ulice: | Do potoků 39 |
| Celková plocha: | 400 m2 |
| Užitná plocha: | 145 m2 |
| Plocha parcely: | 400 m2 |
| Zastavěná plocha: | 92 m2 |
| Rok kolaudace: | 2001 |
| Míst k parkování: | 2 |
| Počet podlaží v objektu: | 2 |
| Druh objektu: | Smíšená |
| Stav objektu: | Velmi dobrý |
| Typ nemovitosti: | Domy |
| Plyn: | plynovod |
| Energetická náročnost budovy: | G |
| Balkon: | Ne |
| Lodžie: | Ne |
| Garáž: | Ne |
| Vybaveno: | Ano |
| K nastěhování: | 15. 9. 2025 |
Kontaktujte makléře nemovitosti
































